CSH6553-35Y-40P Bitzer винтовой компрессор
Розничная цена (Russian Federation)
1 502 589 ₽
Купить данный компрессор с учетом скидки можно у официальных поставщиков Bitzer в России
- Характеристики
- Описание
- Документация
- Чертёж
| Модель | CSH6553-35Y-40Р |
| Бренд | BITZER |
| Код заказа | CSH6553-35Y-40Р |
| Тип | Винтовой |
| Тип (серия) | CSH |
| Режим работы | Среднетемпературный |
| Хладагент | HFC |
| Длина (мм.) | 1 160 |
| Ширина (мм.) | 730 |
| Высота (мм.) | 720 |
| Вид упаковки | Коробка (картон с деревянным поддоном) |
| Заменяемый артикул, альтернативный или предыдущий код заказа | CSH6553-35Y |
CSH6553-35Y-40Р Компрессор полугерметичный винтовой компактный Bitzer
ТЕХНИЧЕСКИЕ ХАРАКТЕРИСТИКИ CSH6553-35Y-40Р
| Объемная произв-сть (2900об/мин 50 Гц) | 137 m³/h |
| Вес | 314 kg |
| Макс. избыточное давление (НД/ВД) | 19 / 28 bar |
| Присоединение линии всасывания | 54 mm - 2 1/8'' |
| Присоединение линии нагнетания | 42 mm - 1 5/8'' |
| Тип масла для R1234yf/R1234ze(E)/R450A/R513A | BSE170 (Standard) |
| Тип масла для R134a/R404A/R507A/R407A/R407C/R407F | BSE170 (Standard) |
КОМПЛЕКТ ПОСТАВКИ КОМПРЕССОРА CSH6553-35Y-40Р
| Класс защиты | IP54 |
| Подогреватель масла | 200 W (Standard) |
| Маслоотделитель | Standard |
| Масляный фильтр | Standard |
| Датчик температуры нагнетания | Standard |
| Стартовая разгрузка | Standard |
| Регулирование производ-сти 4-х-ступ. | 100-75-50-25% (Standard) |
| Плавное регулирование производ-сти | 100-25% (Standard) |
| Встроеный обратный клапан | Standard |
| Защита мотора | SE-E1 (Standard), SE-E3(Standard for 660-690V) |
| Заправка масла | 9,5 dm³ |
ДОСТУПНЫЕ ОПЦИИ ДЛЯ МОДЕЛИ
| Датчик уровня масла | min / max OLC-D1-S (Option) |
| Запорный вентиль на нагнетании | Option |
| Запорный вентиль на всасывании | Option |
| Запорный вентиль на линии экономайзера с шумоглушителем | Option |
| Впрыск жидкости со встроенным соплом | Option |
| Мостики для прямого старта | Option |
| с шумогасящим кожухом | Option |
| Антивибрационные демпферы | Option |
| Защита мотора | SE-i1 (200-690V) |
ПАРАМЕТРЫ МОТОРА КОМПРЕССОРА CSH6553-35Y-40Р
| Напряжение мотора (др. по запросу) | 380-415V PW-3-50Hz |
| Максимальный рабочий ток | 58.0 A |
| Соотношение обмоток | 50/50 |
| Пусковой ток (ротор блокирован) | 153.0 A D / 305.0 A DD |
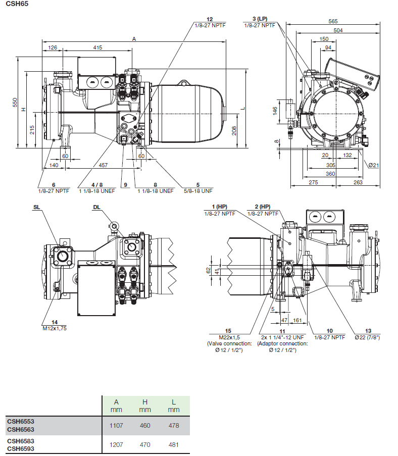
Позиции присоединений, обозначенные на чертежах
1 Присоединение высокого давления (HP)
2 Дополнительное присоединение высокого давления
3 Присоединение низкого давления (LP)
4 Смотровое стекло уровня масла
5 Сервисный масляный клапан (стандарт) / присоединение для выравнивания уровня масла (параллельная работа)
6 Слив масла (корпус мотора)
8 Присоединение для опционального оптико-электронного реле уровня масла (OLC-D1-S)
9 Подогреватель масла в гильзе
10 Присоединение давления масла
11 Присоединение для внешнего маслоохладителя (опциональный адаптер)
12 Датчик температуры масла (PTC)
13 Присоединение для экономайзера (ECO) - опциональный запорный клапан с гасителем пульсаций
14 Резьба для поддерживающей скобы трубопровода (линия для ECO или LI)
15 Присоединение для впрыска жидкости (LI) - опциональный запорный клапан
16 Винт заземления для корпуса
SL Линия всасывания
DL Линия нагнетания
